
Am Lehn – Sanierung eines denkmalwürdigen Ferienhauses
Das steil in den Hang gesetzte Ferienhaus wurde 1965 vom Meiringer Architekten Ernst. E. Anderegg erbaut und im Jahr 1976 erweitert. Es ist eine seiner frühen und bedeutenden Ferienhausbauten in der Region Interlaken-Oberhasli.
Die gläserne Schaufront wurde mittels Glasersatz unter dem Erhalt der äusseren Rahmenkonstruktion energetisch verbessert. Die Auswirkungen auf das äussere sowie innere Erscheinungsbild konnten dabei auf ein Minimum reduziert werden. Die hölzernen Glasleisten im Innern wurden nach den originalen Profilen und unter Wiederherstellung des Schraubenbildes ersetzt. Das Eternitschieferdach erfuhr ebenfalls eine energetische Ertüchtigung. Mit der Verwendung einer hochwertigen Dämmung und Erhöhung des Dachaufbaus um lediglich acht Zentimeter beschränkt sich der neue Aufbau auf ein denkmalverträgliches Mass. Das kleinteilige, fasenlose Format der Eternitschiefer wurde gemäss dem historischem Vorbild gewählt.
Im Innern erfolgte eine behutsame Auffrischung der Holzoberflächen. Nachträglich eingebrachte Spannteppiche wurden entfernt, das ursprüngliche Erscheinungsbild des Galeriegeländer bei Gleichzeitiger Ertüchtigung der Absturzsicherung wiederhergestellt. Die Holzböden wurden fachmännisch geschliffen und geölt und das Schamotte-Mauerwerk des Cheminées instandgesetzt.
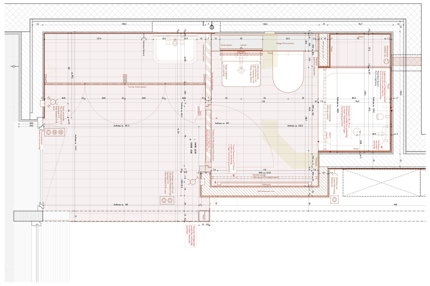
Der 1976 erstellte Studioanbau erfuhr infolge eines Wasserschadens eine Komplettsanierung. Im Rahmen der Schadensanierung wurde die Gelegenheit ergriffen Verbesserungen an der Bestandesarchitektur vorzunehmen: Der knappe Grundriss des Bades wurde vergrössert, die bestehende Arbeitsablage bei der Aussentüre mit einem Verschlag ersetzt. Verschlagtüren, Badezimmertüre und holzverkleidete Nische im Bad bilden einen zusammenhängenden Schreinereinbau, welcher sich am gestalterischen Vorbild der Schreinereinbaute im Wohnzimmer des Hauptbaus als typisches Ausstattungselement der 60er-Jahre orientiert.
Architektur, Baumanagement, Bauleitung: Archibald Hänny, Zürich
Zimmermann, Schreiner, Holzböden: Chr. von Bergen AG, Reuti
Baumeister: Kaspar von Bergen Bau AG, Goldern
Maurer- Putz- und Plattenarbeiten: Beyeler Bau AG, Meiringen
Spenglerarbeiten: Enertech AG, Meiringen
Sanitär- / Heizinstallationen, Walter Huggler AG, Meiringen
Elektroinstallationen: Enertech AG, Meiringen
Bauphysik: RSP Bauphysik AG, Luzern
Bauberatung Heimatschutz: Rudolf Schild, Schwanden bei Brienz















