
Brunegg – Vom Ein- zum Mehrfamilienhaus
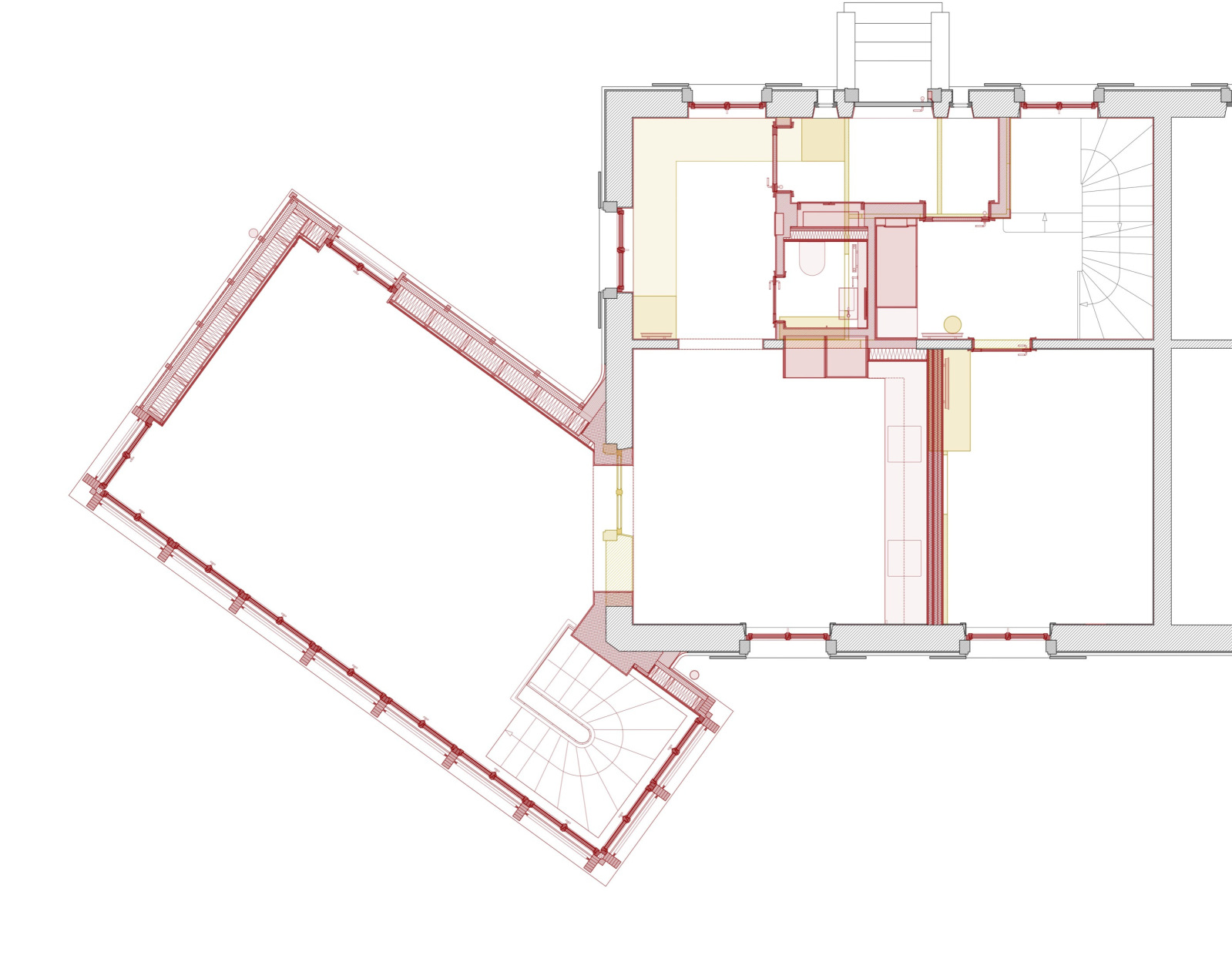
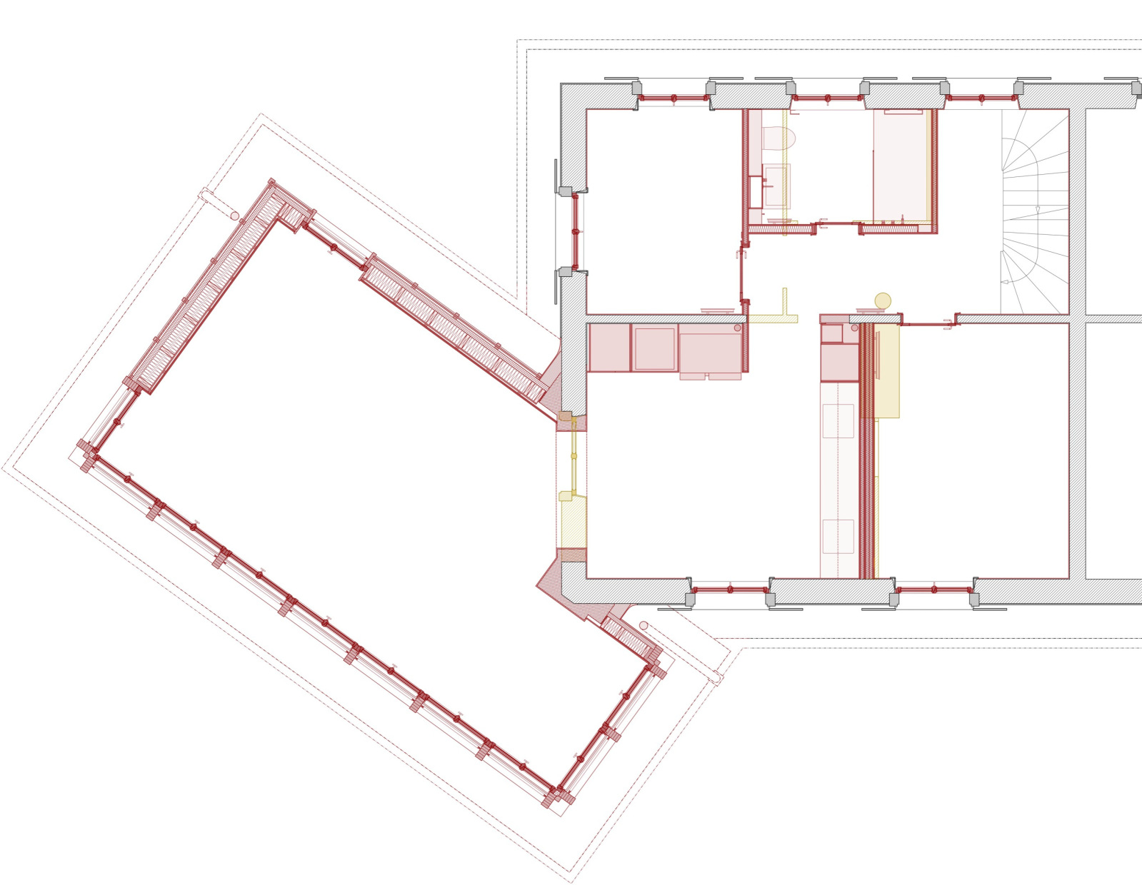
In Zürich Enge ist im Sommer 2023 mit einem An- und Umbau aus einem bescheidenen Reiheneinfamilienhaus ein städtebaulich prägnantes und sich spannungsvoll in den heterogenen und sensiblen Kontext einfügendes Mehrgenerationenhaus entstanden. Zwei reizvolle übereinanderliegende Maisonettewohnungen mit ganz unterschiedlichen Vorzügen oszillieren dabei zwischen dem hundertjährigen Altbau und dem zeitgenössischen Erweiterungsbau aus Holz.
Das Reiheneinfamilienhaus am Bruneggweg 4 ist Teil einer nach 1920 erbauten Siedlung, deren zweigeschossige Häuser sich an der Hangkante des Moränenwalls östlich der Mutschellenstrasse in orthogonaler Bauweise entlang des Bruneggwegs erstrecken und über prägnante Walmdächer und qualitätsvolle durchgrünte Gärten verfügen. Mit seiner prominenten Eck- und Hügellage kommt dem Haus Bruneggweg 4 inner- und ausserhalb der Siedlung eine städtebaulich herausragende Rolle zu. Dieser wurde im vorliegenden Projekt besondere Beachtung geschenkt: Mit der Abdrehung des Anbaus zum Bestand konnte die Flucht der Häuserzeile an der Brunaustrasse fortgeführt werden und der Anbau seine Funktion als vermittelndes Scharnier zwischen der auf dem grünen Hügel thronenden Siedlung und der in der Senke liegenden historistischen Mehrfamilienhausbebauung übernehmen. Mit seiner Präsenz ist der Anbau einerseits ein selbstbewusstes und städtisches Vis-à-vis zum «Bruneck» – dem prägnanten, schmuckvollen Sichtbackstein-Eckbau der Jahrhundertwende an der Kreuzung Waffenplatz- und Brunaustrasse zu verstehen. Andererseits und gleichzeitig ist er mit seiner architektonischen Gestaltung und Materialisierung als eine in den Garten des Altbaus gestellte Pavillonarchitektur zu lesen. Mit seinen gestrichenen Holzfassaden ordnet sich der Anbau dem bestehenden verputzten Massivbau unter und sein gekröpftes Kupferwalmdach dient ebenfalls der Bezugnahme und Hierarchisierung. In der Fassadenrhythmisierung stellt der Anbau den Zusammenhang zum Bestandesbau über die Sockel- und Traufhöhe her und zwischen jedem Geschoss und zum Abschluss vor dem Dach verläuft ein schmales, umlaufendes Gesims. Pfosten, Gesimse und Fenster gliedern den Anbau nuanciert und vielfältig. Im Innern wird mit der Gestaltung und Materialisierung der Bauteile ebenfalls ein Konzept der feinen Differenzierung zwischen Bestandesbau und Anbau sowie der Aufnahme historischer Reminiszenzen in die neu gestalteten Bauteile verfolgt. Neben den hochwertigen Holzfenstern bestimmen Böden in Eichenparkett, aus geschliffenem Hartbeton oder dem wabenförmigen Feinsteinzeug die Innenräume.
Architektur, Bauleitung, Baumanagement: Archibald Hänny, Zürich
Baumeisterarbeiten: Piatti + Bürgin Bau AG, Dietlikon
Erdsondenbohrungen: Norline AG, Neuhausen am Rheinfall
Montagebau in Holz: Aregger Holzbau GmbH, Eschenbach
Fenster aus Holz: Vogel Fensterbauer AG, Goldach
Spenglerarbeiten: Sada AG, Opfikon
Metallbauarbeiten: Wolfermann-Nägeli Metallbau AG, Zürich
Elektroanlagen: Christoph Bieri Elektroanlagen AG, Zürich
Heizungsanlagen: Burkhardt Heizung + Sanitär AG, Dübendorf
Sanitäranlagen: Benz + Cie. AG, Zürich
Trockenbau- und Gipserarbeiten: Rolf Schlagenhauf AG, Zürich
Unterlagsböden und geschliffener Hartbeton: Peter Kramer AG, Stallikon
Schreinerarbeiten: Hans Mahler AG, Zürich
Platten- und Baumeisterarbeiten: Gebr. Nötzli AG, Zürich
Malerarbeiten: Gipser- und Malergenossenschaft GMGZ, Zürich
Umgebungsarbeiten: Reiss & Reber AG, Zürich
Fotografie: Kathrin Schulthess, Basel






















